ETA PC 20 bis 105 kW
Technische Daten 20 bis 50 kW
| PelletsCompact | 20 | 25 | 32 | 40 | 45 | 50 | |
|---|---|---|---|---|---|---|---|
| Nennwärmeleistungsbereich | kW | 6,0 - 20,0 | 7,3 - 25,0 | 7,3 - 32,0 | 12,0 - 40,0 | 12,0 - 45,0 | 14,6 - 49,9 |
| Energieeffizienzklasse** | |||||||
Wirkungsgrad bei Teillast / Nennlast* | % | 93,9/ 94,4 | 92,2 / 95,2 | 92,2 / 94,5 | 92,3 / 93,2 | 92,4 / 92,5 | 92,5 / 91,8 |
Feuerungstechnischer Wirkungsrad (Aufstellung innerhalb des Wohnbereiches) Teillast / Nennlast | % | 97,0 / 95,8 | 96,7 / 96,1 | 96,7 / 95,5 | raumluftunabhängiger Betrieb NICHT möglich! | ||
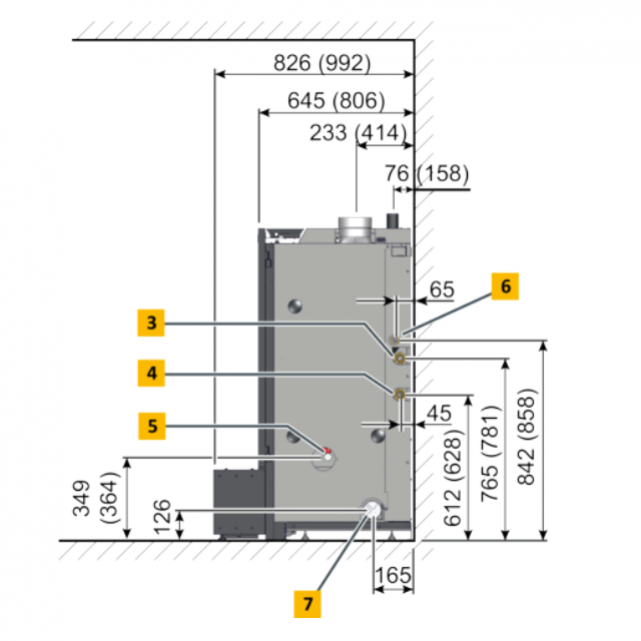
| Kesselabmessungen B x T x H | mm | 1.110 x 644 x 1.375 | 1.175 x 805 x 1.390 | ||||
| Gewicht | kg | 380 | 462 | ||||
| Wasserinhalt | Liter | 52 | 76 | ||||
| Freie Restförderhöhe der Pumpe bei ΔT=20°C für Pufferbetrieb | mWS / m³/h | 5,9 / 0,85 | 5,6 / 1,06 | 4,3 / 1,36 | 4,2 / 1,70 | 3,5 / 1,92 | 3,3 / 2,13 |
| Maximale Entfernung Pelletslager | m | 20 | |||||
| Aschebehältervolumen | Liter | 44 | |||||
| Erforderlicher Kaminzug bei Teil-/Nennlast | Pa | > 1 / > 3 über 15 Pa ist ein Zugbegrenzer erforderlich | |||||
| Elektrische Leistungsaufnahme bei Teillast / Nennlast* | W | 56 / 90 | 60 / 101 | 60 / 142 | 70 / 150 | 70 / 155 | 75 / 160 |
| Maximal zulässiger Betriebsdruck | bar | 3 | |||||
| Einstellbereich Temperaturregler | °C | 70 - 85 | |||||
| Maximal zulässige Betriebstemperatur | °C | 95 | |||||
| Kesselklasse | 5 nach EN303-5:2012 | ||||||
| Geeignete Brennstoffe | Pellets, EN plus-A1, ISO 17225-2-A1 | ||||||
| Elektrischer Anschluss | 1 x 230V / 50Hz / 13A | ||||||
